
INDIRIZZO: Via Marco Polo 1 Grugliasco (TO) 10095
ANNO: 2018
COMMITTENTE: Privato
PROGETTISTA: Arch. Guadagno Sara
LAVORAZIONI: Ristrutturazione interna di alloggio.
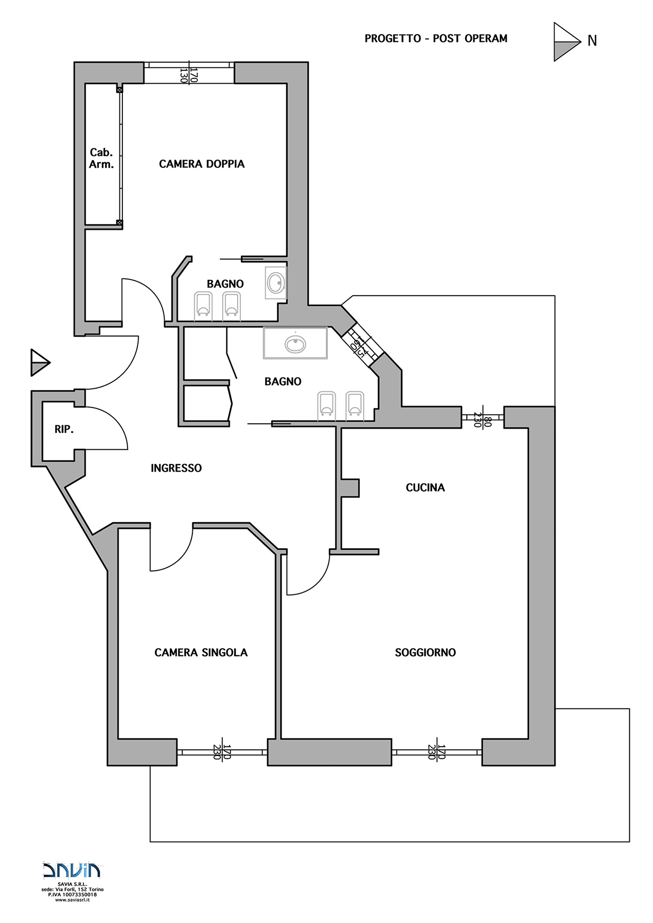
La progettazione di questo intervento prevedeva la conservazione dei locali originari con l’aggiunta di un bagno accessorio, a servizio della camera doppia, la creazione di una cabina armadio e l’apertura tra il soggiorno e la cucina.
La necessità della committenza richiedeva la presenza di un bagno in aggiunta e un ambiente più ampio nella zona giorno.
La SAVIA s.r.l. ha eseguito i lavori di: demolizione delle parti murarie, come da esigenze; realizzazione delle pareti murarie nuove; sostituzione degli impianti: elettrico, idrico – sanitario, di condizionamento e gas; sostituzione di tutti i pavimenti con realizzazione di parquet posato in opera, fatta eccezione per la camera singola, ove si è ripristinato quello esistente e infine, sostituzione delle porte interne.











